横浜で有名な大桟橋に御座います
有名レストランのトイレリニューアル工事をさせて頂きました<(_ _)>
建物自体の構造が複雑で、トイレ自体の直角方向がない!
壁も垂直の方向が2面しかない!
など、なかなか面白い現場でした。
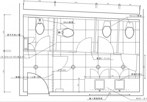
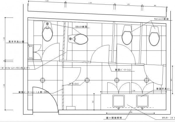
工事前図面
元々は女子トイレに無理矢理、男子トイレを付けたような状態でしたが
「お洒落にしたい・自動便座にしたい・音の問題等」のご依頼でした。
工事後は男子小便器とSKを撤去して独立した男子トイレと
今より大きめの女子トイレです
女子カウンター廻り
一般的に手洗いですね
女子トイレにもウォシュレットがありませんでした
入り口は使いづらい折り戸の入り口
結構ガタガタでした
男子トイレ場所になるSK
肩身の狭そうな男子トイレの手洗い器さん笑
旧男子トイレ
こちらも使いづらそう・・・
営業時間が夕方からなので夕方までにはトイレ使用出来るように工事スタート!
初日はお店がお休みをねらって
一気にパーテーションを解体!
次に貼る床材の食いつきを良くするようにサンダーケレンをしてます
壁の造作をして
パーテーションを設置!
ここまで2日で終えてます。
17:00迄にはトイレを使えるようにしないといけない都合上
塗装工事は後施工になりましたが仕方ないですね・・・
塗装用の養生をきっちりします
天井もダウンライトにする関係で10cmほど天井を下げました
写真は塗装のプライマー完了写真です
塗装が終わると床の施工です。
この作業もパーテーションの前段階だと楽出来たんですけどね(^_^;)
あと便器の交換・配管工事・電気工事を終えて無事完成!
カウンター
鏡に間接照明を埋め込んで
アンダーボウル仕様
女子トイレ
カメラが広角じゃなくて狭そうですが
実際は広いです(*^_^*)
男子トイレも間接照明を埋め込んで
コンパクトでお洒落なトイレになりました~!
広くて明るいトイレになりました!
気づきましたか?
調光機能はもちろんですが昼白色と電球色の調整が出来る
LEDライトです!
これがあったら自宅のリビングも入れたかったな-って思う方もいるのではないでしょうか?
新商品なので気になる方が居たらダウンライトから間接照明用など色々ありますので
トイレリニューアルや店舗内装お任せ下さい!(*^_^*)
今回ご依頼頂いたsabuzeroさんは料理はもちろん
みなとみらいを一望出来る一流レストランです
是非足を運んでみて下さいね!





























