今回ご紹介するのは
オフィスの内装改修工事です
まずは現場調査!
西新宿の路面店で好立地な場所ですね

既存の内装は至ってシンプルです


お客様のヒヤリングで、お洒落なカフェのような事務所にしたいという事で
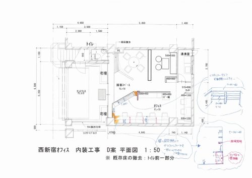
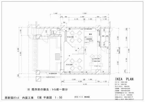
現場調査後、図面を作成します



3パターンほどご提案しましたが
精査・協議の結果↓の図面に決定!

デザインパースはこんな感じです!
落ち着いた雰囲気の良いオフィス(^_^)/

さて工事着手です!

間仕切り下地部分に補強を行い

木造のパーテーションを造っていきます!

電気屋さんも相判で工事を進めます!

床工事も順調です

ガラスパーテーションはスチール製・アルミ製と
ご提案しましたが、工期/予算との兼ね合いで
今回木造で組み上げます!


木部も塗装を行って
床/クロス仕上げを行って
照明をつけて

ガラスを入れたら完了です!!




グレイッシュな落ち着いたオフィス完成です!
照明の色温度も良い感じです(^_^)
ご予算や材料の善し悪し、仕上がりの違いなどは
一般の方には分かりません。
丁寧にご説明してご納得いくまで打合せをさせて頂きますので
お気軽にご相談ください(^_^)

最後にお客様から頂いた写真です!
ご自身で付けたスチールサインが格好いいですね!
この度は有り難う御座いました(^_^)
総合保険会社
株式会社 プラス様


