リフォーム・リノベーション– category –
-
リフォーム・リノベーション
日ノ出町PJ 給排水管交換
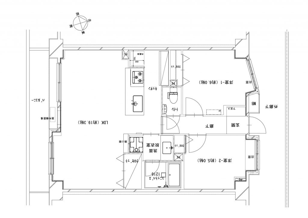
間取り図 3LDKにも変更可能です^^ 日ノ出町PJ 給排水管交換完了。今週から大工工事に入ります♪ 物件詳細はこちら -
リフォーム・リノベーション
日ノ出町PJ 解体工事始まりました
インペリアル横浜パークサイド 横浜中心部から西部を見渡す11階最高の眺望! 解体工事が始まりました♪ キッチン袖壁・リビング仕切り等を撤去し大空間に。 梁とダクト... -
リフォーム・リノベーション
日ノ出町プロジェクト始まりました
日ノ出町駅徒歩1分。11階最上階、目の前に遮るものは何もない 横浜西部を見下ろす抜群の眺望 そんなプレミアムな空間にふさわしい贅沢な設備・資材をセレクトした新築... -
リフォーム・リノベーション
川崎市 管理組合様からのご依頼でマンションの雨漏り 防水工事
川崎市の築25年3階建てのマンション、管理組合様から問合せ頂き雨漏れの補修工事を行いましたのでご紹介致します。 建物は築25年経過しており、全体的な大規模修繕をし... -
リフォーム・リノベーション
神奈川区 戸建の板金屋根改修工事
横浜市神奈川区の戸建の屋根改修工事を行いましたのでご紹介いたします。 建物は築30年以上経っておりますが、外観からは想像つかない、 写真のようなきれいな外観です... -
リフォーム・リノベーション
室内ドア
東海建物リノベーションで使用しているドアをご紹介いたします^^ 無垢+塗装ドア 無垢材のドアを塗装したドアです。 塗装が可能なためお好みの色に仕上げるこ... -
リフォーム・リノベーション
事務所間仕切りパーテーション工事
今回は新築倉庫の内装後 間仕切りパーテーション工事です! 最近パーテーションのお問い合わせが多いいですね! 場所に合った間仕切り方法など色々施工方法が変わります... -
リフォーム・リノベーション
新築複合ビル 事務所内装工事【港北区新横浜】
今回ご紹介させて頂きますのは、 新築後のオフィス内装工事です。 いつもお世話になっておりますお客様よりご用命頂きまして有り難う御座います。<(_ _)> まずは... -
リフォーム・リノベーション
メゾン滝頭 ご成約いただきました^^
http://realestate.toukaitatemono.com/ 昨日、【メゾン滝頭】をご成約いただきました♪ 意匠・設備・空間設計をこだわりフルスケルトンからリノベーションした ... -
リフォーム・リノベーション
横浜市港北区 浄化槽廃止工事・外構工事編
6月中旬になるとムシムシと暑くなってきましたね(^_^;) コロナ対策をして毎日稼働しております!! 今回ご紹介するのは 以前新築で建てさせて頂きました港北区... -
リフォーム・リノベーション
厚木ビル防水・外装工事 大規模修繕工事編(^_^)
今回ご紹介させて頂くのは、 いつもおせわになっておりますビルオーナー様からのご依頼案件です。 厚木駅近の商店街の一角に建つ築年数35年3階建ての飲食店が入っている... -
リフォーム・リノベーション
メゾン滝頭 スケルトンからのデザイナーズリノベーション
http://realestate.toukaitatemono.com/data/24/detail/ ↑詳細はこちら @@@@@@@@@@@@@@@ 現在東海建物では工事部・営業部のスタッフを募集してお...

